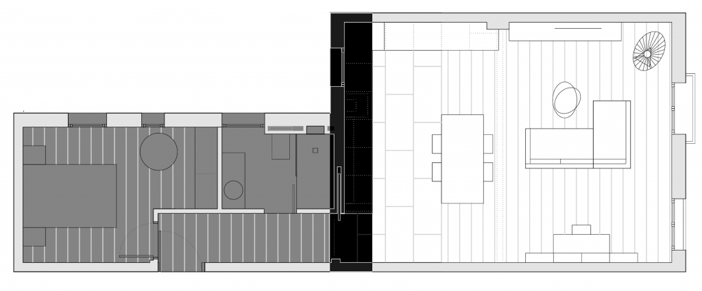
#15 APARTAMENTO AVVA
- Situación: Avenida de Valladolid (MAD, ESP)
- Programa: Residencial
- Superficie: 58 m2
- Estado: Completado
- Equipo: Ana Sabugo Sierra, José Manuel de Andrés Moncayo (GOA Arquitectura)
AVVA explora las potencialidades del loft integrando en una gran sala de 5 x 7 metros abierta al exterior las funciones de una vivienda y de un espacio de trabajo. De esta habitación única se segregan únicamente dos piezas compactas, baño y dormitorio, diseñados en su mínima expresión funcional para dar servicio a la vida que se desarrolla íntegramente en la sala principal. El apéndice servidor integra igualmente las instalaciones de climatización de la vivienda, desde donde se impulsa el aire que climatiza el espacio diáfano. Dos grandes huecos ecualizan la relación del interior con el medio mediante un espeso arbolado caducifolio que actúa como un parasol en verano y permite la libre penetración de la radiación solar en invierno.





