#33 Vivienda LGSC (Vol. II)
- Situación: C/ Lagasca (MAD, ESP)
- Programa: Residencial
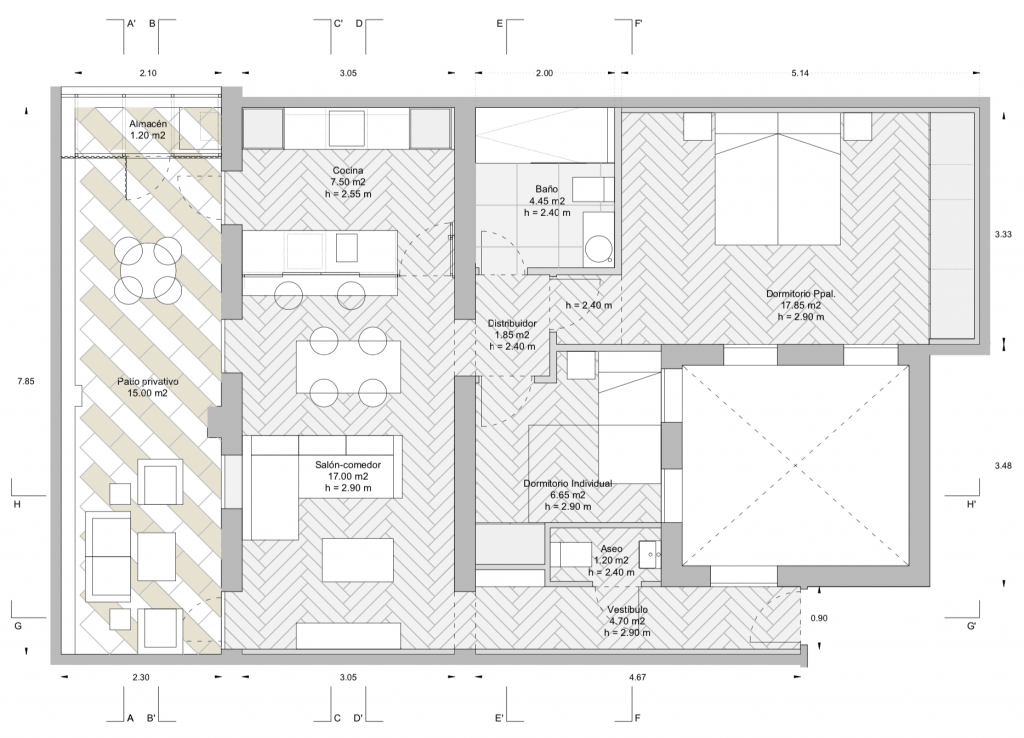
- Superficie: 70 m2 (Vivienda) + 20 m2 (Patio)
- Estado: Completado
- Diseño: Ana Sabugo Sierra, José Manuel de Andrés Moncayo (GOA Arquitectura)
- Construcción: Gustavo Arroyo (NAIDA Interiores)
- Fotografía: Rocío Romero, Miguel de Guzmán (Imágen Subliminal)
La reforma de la vivienda LGSC gira en torno a la puesta en valor de un patio de servicio previamente degradado e infrautilizado en una de las calles mejor valoradas del distrito Salamanca de Madrid. Los cuartos húmedos se trasladan a la crujía interior permitiendo la configuración de un salón-comedor-cocina continuo y abierto al renovado patio a través de grandes ventanales. Una configuración compacta permite la creación de un aseo de cortesía y de una habitación secundaria para la vivienda. La disposición zigzagueante de la tarima y el solado ajedrezado del patio dotan de vibración y movimiento al interior a la vez que los paramentos blancos y los detalles dorados contribuyen a la luminosidad de la vivienda.















