66_Casa RTM
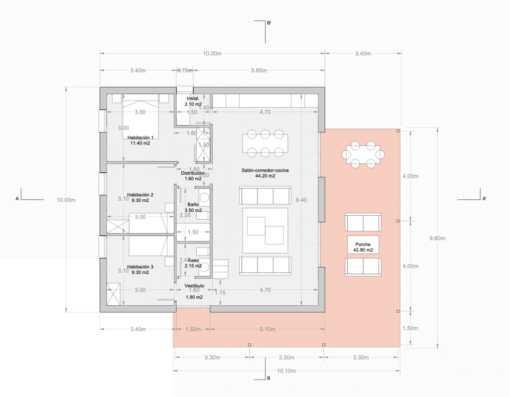
La vivienda RTM se plantea como un volumen sobrio y compacto. Su organización distribuye el programa en torno a una franja central de servicios que libera el perímetro para las habitaciones y los espacios comunes. El resultado es una casa contenida, luminosa y silenciosa, que interpreta la tradición rural desde una lógica contemporánea y funcional.
- Situación: Santa Cruz de Retamar (Toledo, ESP)
- Programa: Residencial
- Superficie: 100 m2
- Estado: En construcción
- Equipo: Ana Sabugo Sierra, José Manuel de Andrés Moncayo (GOA Arquitectura)
La vivienda RTM en la Urbanización Calalberche de Santa Cruz de Retamar (Toledo, España) se concibe como una pieza sobria y compacta, implantada en una parcela llana y seca donde dialoga con el sosiego horizontal del paisaje; su organización responde a un esquema casi agrícola —un volumen nítido, compacto, recubierto con una envolvente térmica continua— que se abre mediante grandes paños acristalados hacia el sur y reparte el programa en torno a una franja central de servicios que libera el perímetro para la vida cotidiana. Una plataforma eleva ligeramente la casa sobre el terreno y acota una transición amable entre interior y exterior, mientras que la materialidad —revestimientos claros, carpinterías coloridas, sombras profundas, encuentros precisos— busca un equilibrio entre eficiencia energética y carácter doméstico. La lógica constructiva es deliberadamente contenida: estructura sencilla, cerramientos de buena inercia, huecos estratégicos para controlar ganancias solares y ventilaciones cruzadas que aprovechan el clima seco de la zona. Todo ello produce una casa silenciosa, funcional y sin estridencias, que interpreta la tradición rural sin imitarla y apuesta por una espacialidad honesta, luminosa y calibrada para acompañar la vida diaria con discreta intensidad.






